Adjacent to iBuild’s Head Office in Melbourne’s Eastern Innovation Centre, iBuild Melbourne display centre demonstrates an innovative integrated approach combining TransPack / Lekofly modular components and site-built elements, creating the finished modern stylish building with 7-star energy rating and seamless integration between modular build and traditional sticky build.
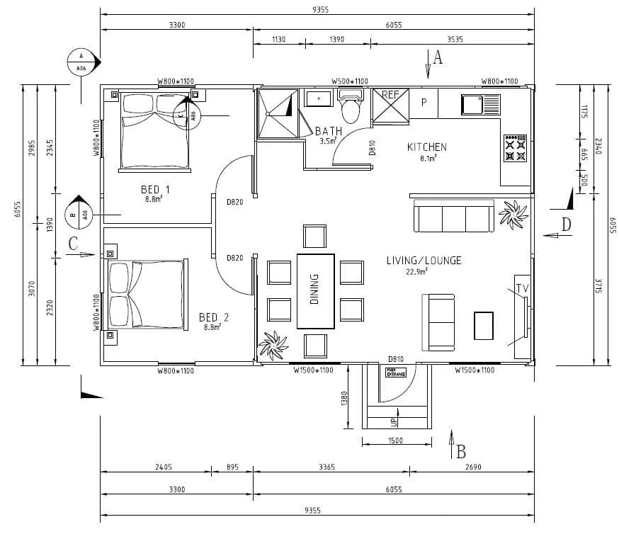
- Bedrooms:Â 2
- Bathrooms: 1
- Kitchen/Living: 1
- Living area: 56m2
- Verandah area: 10m2
- Total area: 66m2
iBuild has constructed a display home in Melbourne’s East, and achieved a 7-star energy rating. The Lekofly display home is fire rated, termite resistant, and equipped with state-of-art optical fibre perimeter protection system.
The display unit demonstrates an innovative integrated approach combining Lekofly modular components and site-built elements, to create the finished modern stylish building demonstrating the seamless integration between modular build and traditional stick build.Â
Structure: prefabricated steel frames, panelised steel sub floor systems, panelised ceiling plates
Insulation: rock wool: 50 KG/m3Â
Cladding: Weathertex primlok, Weathertex exterior board, and EzyClad
Wall: 50mm rock wool sandwich panel. Plasterboard overlay.
Floor: carpet for bedroom, tiles for kitchen and bathroom, floor boards for living area
Windows: double glazing sliding window (AS1288-2066)
Ceiling: 50mm sandwich panel for modular part and plasterboard for cathedral ceiling
Book An Open For Inspection Event
I have been very impressed at this amazing display home. The modular build blends with the sticky build so well that I can’t even tell which part of the display building is modular build and which part is traditional timber stick build. We want to build a unique double-storey beach house along the great ocean road. I have been searching for 3 years talking to numerous modular building suppliers. I am glad that I have finally found iBuild and signed a contract with them!
Peter Sim – Portland VIC 3305




















